Tudor arched fire surrounds

 

 

 

 

Online store
Bespoke products
Clearance lines
Contact us

Copyright

Ball Finials & Pier capsCoping StonesGate piers and gatepostsObelisk & Celtic crossFeature stonesCobbles & Rockery stoneNatural & Composite wallingNatural stone pavingLandscaping troughsColour finishesOnline StoreLandscape brochure download

 

 

   Product information for the Tudor arched fire surrounds in composite stone, if you need any further information on this or any other product please do not hesitate to contact us on 01829 770 632
Homepage

 

 

 

 

Planters & UrnsWater features & FountainsDrilled feature stonesSundials & birdbathsStatuary & garden ornamentsGarden benchesChinese lanternsOnline StoreColour finishesGarden brochure download

 

 

 

 

 

 

 

 

 

 

Company backgroundTerms & ConditionsProduct careColour finishesColour finishes

 

 

Cills & HeadersWindow & Door surroundsCorbels, Quoins & BracketsPlinth & String courseColumns & PilastersHinge & Jamb blocksFireplacesHouse signsArchitectural miscellaniaColour finishesBespoke productsOnline StoreLandscape brochure download

 

 

 

 

 

 

 

 

A Fine example of a Tudor arched fire surround with recessed block work, shown here in a composite Portland stone but available in seven regional stone finishes or colour matched to existing masonry.

Length of mantel: 1370mm

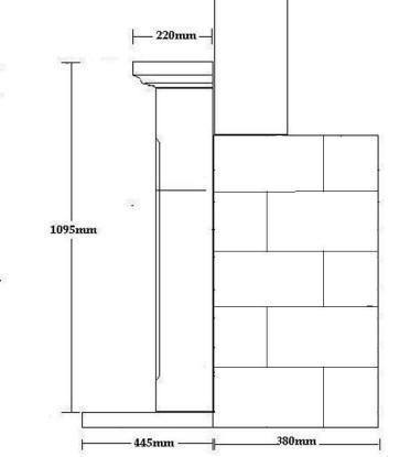
Depth of mantel is 220mm

Height not including hearth is 1095mm (+ 50mm for hearth)

Internal opening width  775mm

Internal opening height 810mm

     See below for further information
A Fine example of a Tudor arched fire surround with back panels, available in seven regional stone finishes or colour matched to existing masonry, the spandrels have highly detailed mouldings of Rose & Clematis.

Length of mantel: 1370mm

Depth of mantel is 220mm

Height not including hearth is 1095mm (+ 50mm for hearth)

Internal opening width 430mm

Internal opening height 570mm

     See below for further information

 

 

 

 

 

 

 

 

     Tudor arched fire surround (with back panels)                                                              Tudor arched fire surround (with recessed block work)